Back
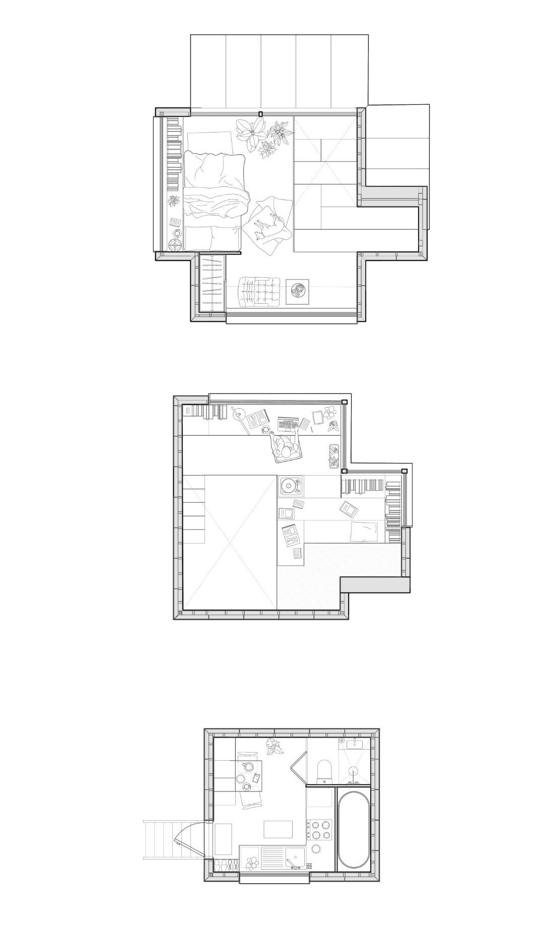
预制化极小住宅,为流浪而生
Client
Personal Project
Project
建筑设计
Year
2022
Scroll down
More projects
View all
林间音乐节
场地就是乐器
筒仓舞厅
做设计是为了跳舞
在此 STUDIO
作品
奖项
联系
Menu
Work
About
Contact
Latest project
一木千林
用一棵花树,在城市中心种下一片无尽的林。